Asking
$1,875,000
Type
Condo
Beds
2
Baths
2.5
int SF
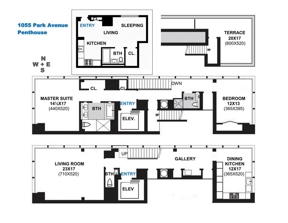
2,164 sf*
ext SF
300 sf*
PVI
28 %

Terrace Size
300 SF
Percent Value Increase (PVI)
28 %
Terrace Type
Direct Living
Living Level
Second Level
Direct Roof
Roof Access
Convenience
True Penthouse
Multiple Access
Multiple Levels
Gas
Water
Features
Summer Kitchen
Pool / Tub
Fireplace
Outdoor Shower
Media / TV
Pergola / Shade
Planters
Ownership
condo
Doorman
full-time
Neighborhood
Carnegie Hill
Name
1055 park avenue
Building Type
apartment
Elevators
1
Pets
dogs
Services
Doorman
Concierge
Elevator Operator
Super
Amenities
Gym
Pool
Garage
Laundry
Lounge
Children's Room
Storage & More
Storage
Bike Room
Cold Storage
Package Room
Parking





