NYC terrace skyline

108 east 91

phb

Asking

$812,500

Type

Coop

Beds

1

Baths

1

int SF

607 sf*

ext SF

600 sf*

PVI

0%

Expert Opinion

safely tucked away this terrace has the potential to be a gem. the side portions of the terrace are too narrow of be useful for anything other than a kitchen garden, but the main portion, with direct living room access,has the scale and views to be enjoyed alone or with friends.

About

brilliantly sunny corner penthouse with wrap terrace- the perfect pied a terre or full-time residence!

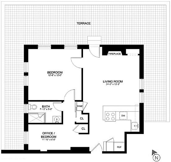
perched atop 108 east 91st street, a boutique prewar co-op with part-time doorman, and on a semi-private landing, is this light flooded southeast corner 1 bedroom penthouse with 3 exposures and a substantial wrap terrace. the pretty living room has two west facing windows, a working fireplace and a south facing glass door leading to the enormous corner terrace. a good sized open kitchen overlooking the living room has stainless steel appliances including a wolf stove and sub-zero refrigerator, granite countertops and ample cabinetry with overhead storage.

french doors lead to the bedroom hallway, which is lined with opaque glass fronted closets, and to a separate east-facing windowed nook, a perfect home office or light filled dressing room, as it is used now. the south and east-facing corner bedroom has 4 windows overlooking the terrace and impressive open city views. just beside it and perfectly situated for guests, is the attractive windowed hall bath with a glass enclosed shower.

108 east 91st street is an intimate pre-war co-op, built in 1928, with a doorman and live-in superintendent. doorman hours: mon-wed 11am-7pm and thurs-sun 7am-11pm. the building is ideally situated 2 blocks from central park, around the corner from the 92nd st y and close to all the important cultural institutions and fine restaurants the upper east side offers. major transportation is also nearby. the co-op has a central laundry room, communal storage and bike room. pied-a- terres and pets under 25 lbs are welcome. please note 75% financing is permitted and there is a 1% flip tax paid by the seller.

Floorplan

floorplan

Terrace Details

Terrace SF

600 SF

Percent Value Increase (PVI)

0%

Terrace Type

Direct Living

Living Level

Second Level

Direct Roof

Roof Access

Access Level

Multiple Access

Multiple Levels

True Penthouse

Features

Summer Kitchen

Pool / Tub

Fireplace

Gas Fireplace

Outdoor Shower

Media / TV

Pergola / Shade

Planters

Building Details

Building Type

hi-rise

Elevators

2

Pets Policy

dogs

Services

Doorman

Concierge

Elevator Operator

Super

Amenities

Gym

Pool

Garage

Laundry

Lounge

Children's Room

Storage & More

Storage

Bike Room

Cold Storage

Package Room

Parking

Location

Connect With An Expert
Chat