NYC terrace skyline

245 Seventh Ave

PHA

Asking

$2,995,000

Type

Condo

Beds

3

Baths

3.5

int SF

2,400 sf*

ext SF

450 sf*

PVI

10 %

About

masterfully renovated with extraordinary attention to all details, this magnificent penthouse duplex sun filled prewar loft home resides in the chelsea atelier, a full service condominium building located in the epicenter of the highly sought after chelsea neighborhood. with nearly 5000sf of living space (3900sf inside / 1080sf outside), this polished home offers unparalleled elegant living featuring a gracious entrance gallery leading to all major rooms, 11'9" ceiling height, an expansive living/dining room with wide open south and west city views through 6 oversized windows, a gorgeous atrium ceiling kitchen with the best of everything including a separate breakfast area (with its own fridge drawers), a truly sumptuous mahogany paneled library with custom crafted lit display shelving & its own wbfp, and a master bedroom oasis with a sitting area, windowed closet & dressing room w/vanity, and a spa inspired limestone bathroom with a glass enclosed double steam shower, heated marble mosaic flooring & towel bars, and a jacuzzi soaking tub. the bedroom wing includes two large bedrooms, a large hall bath, a fantastic guest sleeping area w/built-in queen sized murphy bed (or great home / kid's office!), large wic, and refrigeration drawers! an architectural floating staircase with a 15' ceiling height atrium takes you to the den/tv room and the spectacular architect designed and fully landscaped private multi leveled terrace, featuring rows of casement windowed french doors, ipe wood & stone flooring construction, a waterfall feature, separate dining and lounging areas, irrigation, and storage. a separate laundry room, custom sound system, doors, hardware and baseboard/ceiling moldings throughout, motorized lutron window treatments, exquisite lighting (custom fixtures, recessed and art lighting w/ radiora technology), beautiful dark walnut stained solid oak flooring, 3 zone central ac, powder room, and custom millwork everywhere completes this exceptional home. bld: 24 hour doorman, on-site superintendent, bike storage, private bin storage (this apt has 2), pets are welcomed, new hallways and lobby coming soon!

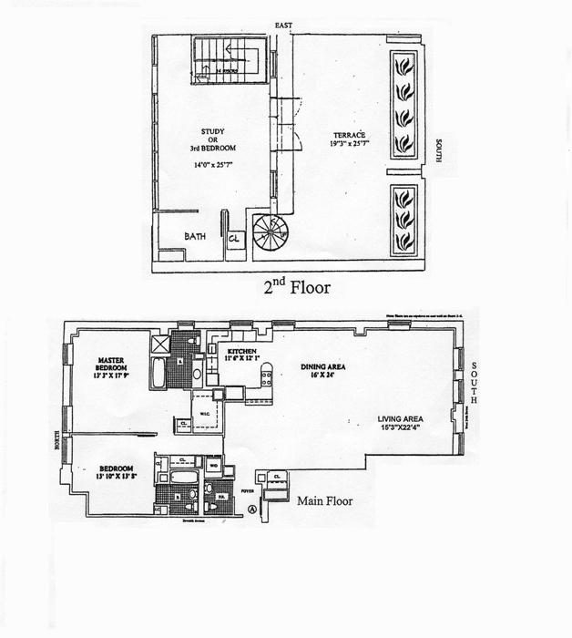
Floorplan

floorplan

Terrace Details

Terrace Size

450 SF

Percent Value Increase (PVI)

10 %

Terrace Type

Direct Living

Living Level

Second Level

Direct Roof

Roof Access

Convenience

True Penthouse

Multiple Access

Multiple Levels

Gas

Water

Features

Summer Kitchen

Pool / Tub

Fireplace

Outdoor Shower

Media / TV

Pergola / Shade

Planters

Building Details

Ownership

condo

Doorman

full-time

Neighborhood

Chelsea

Name

chelsea atelier

Building Type

loft

Elevators

2

Super

Live-in

Pets

dogs

Services

Doorman

Concierge

Elevator Operator

Super

Amenities

Gym

Pool

Garage

Laundry

Lounge

Children's Room

Storage & More

Storage

Bike Room

Cold Storage

Package Room

Parking

Location

Ask Us About 245 seventh ave #pha

Similar Listings

261 west 28 #10d
Chelsea
261 West 28 #10D
$2,250,000
Expert Opinion:
great size and excellent excellent vegetation, make this a lovely respite. well worth the one flight of stairs.
Condo|2 Beds|2.5 Baths|1016 int SF
Second Level|342 ext SF
Courtesy of industrie residential
471 west 22 #e
Chelsea
471 West 22 #E
$2,395,000
Expert Opinion:
this elegant roof terrace is proof of how much can be gained with great landscaping,
Coop|2 Beds|2 Baths|1485 int SF
Second Level|488 ext SF
Courtesy of corcoran
130 west 30 #16a
Chelsea
130 West 30 #16A
$2,495,000
Expert Opinion:
small terraces, barely big enough to be an escape. with no room for anything beyond a single chair.
Condo|3 Beds|3.5 Baths|2256 int SF
Direct Living|100 ext SF
Courtesy of compass
551 west 21 #phb
Chelsea
551 West 21 #PHB
$27,500,000
Expert Opinion:
these dual living level loggias frame the skyline beautifully, providing a sophisticated, "open-air" extension to the interior. while the narrow width favors intimate "personal loitering" over large-scale dining, the twin vantage points offer a rare, private dual-perspective that is perfect for a quiet morning coffee above the city.
Condo|3 Beds|3.5 Baths|6137 int SF
Direct Living|200 ext SF
Courtesy of compass
444 west 19 #201
Chelsea
444 West 19 #201
$3,390,000
Expert Opinion:
the surrounding vegetation makes this terrace feel like a garden.
Condo|2 Beds|2 Baths|1406 int SF
Living Level|530 ext SF
Courtesy of serhant llc
148 attorney st #ph
Lower East Side
148 Attorney St #PH
$2,250,000
Expert Opinion:
the distant skyline views from the lower east side penthouses are epic, and this one follows that pattern. the space is there to be practical, but little has been done so far to make it welcoming.
Condo|2 Beds|2 Baths|1255 int SF
Living Level|500 ext SF
Courtesy of corcoran
Chat