Asking
$2,750,000
Type
Coop
Beds
2
Baths
2
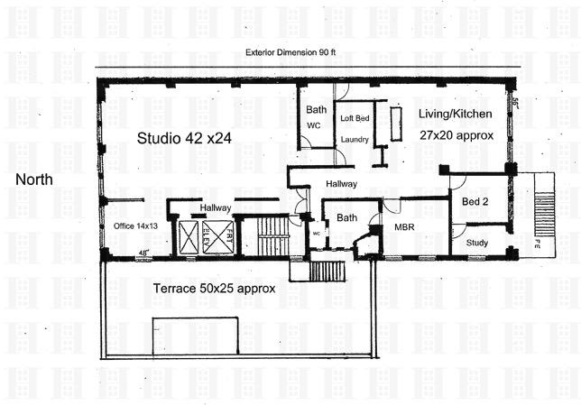
int SF
3270 sf*
ext SF
1500 sf*
PVI
2%

Terrace SF
1500 SF
Percent Value Increase (PVI)
2%
Terrace Type
Direct Living
Living Level
Second Level
Direct Roof
Roof Access
Access Level
Multiple Access
Multiple Levels
True Penthouse
Features
Summer Kitchen
Pool / Tub
Fireplace
Gas Fireplace
Outdoor Shower
Media / TV
Pergola / Shade
Planters
Building Type
apartment
Elevators
2
Pets Policy
dogs
Services
Doorman
Concierge
Elevator Operator
Super
Amenities
Gym
Pool
Garage
Laundry
Lounge
Children's Room
Storage & More
Storage
Bike Room
Cold Storage
Package Room
Parking





