Asking
$9,975,000
Type
Coop
Beds
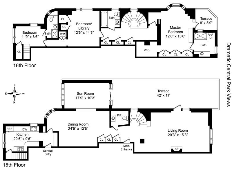
3
Baths
3.5
int SF
2,500 sf*
ext SF
460 sf*
PVI
0 %

Terrace Size
460 SF
Percent Value Increase (PVI)
0 %
Terrace Type
Direct Living
Living Level
Second Level
Direct Roof
Roof Access
Convenience
True Penthouse
Multiple Access
Multiple Levels
Gas
Water
Features
Summer Kitchen
Pool / Tub
Fireplace
Outdoor Shower
Media / TV
Pergola / Shade
Planters
Ownership
coop
Doorman
full-time
Neighborhood
Upper East
Building Type
apartment
Elevators
2
Super
Live-in
Pets
dogs
Services
Doorman
Concierge
Elevator Operator
Super
Amenities
Gym
Pool
Garage
Laundry
Lounge
Children's Room
Storage & More
Storage
Bike Room
Cold Storage
Package Room
Parking