NYC terrace skyline

321 west 78

ph10a

Asking

$1,100,000

Type

Coop

Beds

1

Baths

1

int SF

1000 sf*

ext SF

650 sf*

PVI

0%

About

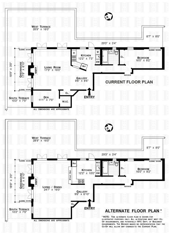
for the first time since the 1960s, this corner penthouse with wraparound terrace and greenhouse is being offered for sale by the original shareholder who lived happily here for decades. the apartment needs a complete renovation so bring your architect, landscape designer, and your imagination and create your own one-of-a-kind trophy property. located on a quiet tree-lined block near riverside park, this four-room, sun-filled penthouse is perched on top of a classic pre-war cooperative. at the heart of this home is a loft-like living room with nearly 10 foot ceilings and terrazzo flooring. a working fireplace is flanked on either side by french doors leading to a greenhouse resting on the south terrace where you can grow sunflowers, roses, and rhododendrons year-round in your secret garden in the sky. a pair of large glass doors leads to a huge 28'9 x 16 west terrace with a peek of the hudson river that is perfect for sunset dinner parties and grand entertaining. the bedroom is located in the rear of the apartment and offers privacy and terrace access through sliding glass doors. there is a den adjacent to the living room with a sun-splashed southern exposure. a windowed kitchen with terrace access (and washer & dryer hookups) and a windowed bathroom complete this remarkable home. 321 west 78th street has an elegant lobby, 24-hour doormen, live-in superintendent, laundry room, storage room, and is pet-friendly. enjoy walking in riverside park, cycling the riverfront esplanade, dining at the boat basin cafe, shopping at zabar's, and concerts at the beacon theater. the subway and crosstown bus are just one block away. it's all here in this thriving upper west side community. shown by private appointment only. flip tax: 2.5% of the sales price paid by seller.

Floorplan

floorplan

Terrace Details

Terrace SF

650 SF

Percent Value Increase (PVI)

0%

Terrace Type

Direct Living

Living Level

Second Level

Direct Roof

Roof Access

Access Level

Multiple Access

Multiple Levels

True Penthouse

Features

Summer Kitchen

Pool / Tub

Fireplace

Gas Fireplace

Outdoor Shower

Media / TV

Pergola / Shade

Planters

Building Details

Building Type

apartment

Elevators

4

Pets Policy

dogs

Services

Doorman

Concierge

Elevator Operator

Super

Amenities

Gym

Pool

Garage

Laundry

Lounge

Children's Room

Storage & More

Storage

Bike Room

Cold Storage

Package Room

Parking

Location

Connect With An Expert
Chat